top of page
logo_biale-01.png
PHOTO-2025-05-01-12-54-44 2.jpg

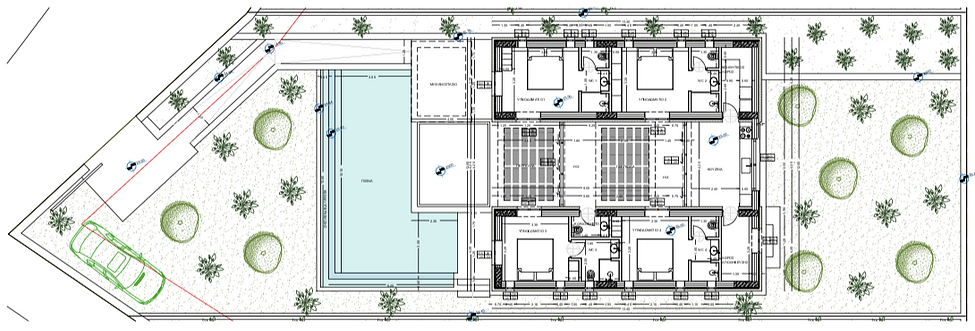
Villa Cypress / Kyprissi

Total indoor area (m²): 117.20

Pergola (m²): 28.08

Semi-open spaces (m²): 17.04

Swimming pool (m²): 48.74

Outdoor area (m²): 335.83

Parking area: parking for 2 cars

Total land plot (m²): 644.37

Main bedroom+ en suite bathroom: 4

W.C.: 1

Screen Shot 2025-05-07 at 10.49.31 AM.png
bottom of page